Daniel Cram / Sutton Group Grande Prairie Professionals

5230 44 Avenue , Commercial for sale in NONE Spirit River , Alberta , T0H 3G0

 MLS® # A2273553

0 bathrooms

Sign up to View

Days on Market

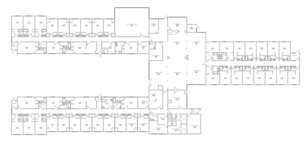
Pleasant View Lodge in Spirit River, Alberta, presents an exceptional opportunity for investors and assisted-living operators to acquire a well-maintained, institutional-quality 42-suite care facility situated on 2.32 acres of R4 High Density Residential land. This 22,177 sq. ft. building has been consistently upgraded, including newer boilers (2015), hot water tanks (2022/2023), modern double-glazed vinyl windows, and a torch-on roof completed in 2018. Now vacant and ready for redevelopment or immediate oc...

Read More

Essential Information

  • MLS® #
    A2273553
  • Year Built
    1960
  • Property Type
    Multi Family
  • MLS® #
    A2273553
  • Year Built
    1960
  • Property Type
    Multi Family
  • MLS® #
    A2273553
  • Year Built
    1960
  • Property Type
    Multi Family

Community Information

  • Postal Code
    T0H 3G0
  • Postal Code
    T0H 3G0
  • Postal Code
    T0H 3G0

Interior

  • Heating
    Boiler
  • Heating
    Boiler
  • Heating
    Boiler

Exterior

  • Roof
    Other
  • Construction
    Concrete
    Wood Frame
  • Roof
    Other
  • Construction
    Concrete, Wood Frame
  • Roof
    Other
  • Construction
    Concrete
    Wood Frame

Additional Details

  • Zoning
    R4
  • Zoning
    R4
  • Zoning
    R4

$999,900

5230 44 Avenue

Schedule Tour
Contact Agent

$4554/month
Est. Monthly Payment
$
$
%
Learn More