Amber Marcoux / RE/MAX Northern Realty

5031 48 Avenue , House for sale in NONE Girouxville , Alberta , T0H 1S0

 MLS® # A2279797

2 bedrooms

2 bathrooms

1,066 sqft

Sign up to View

Days on Market

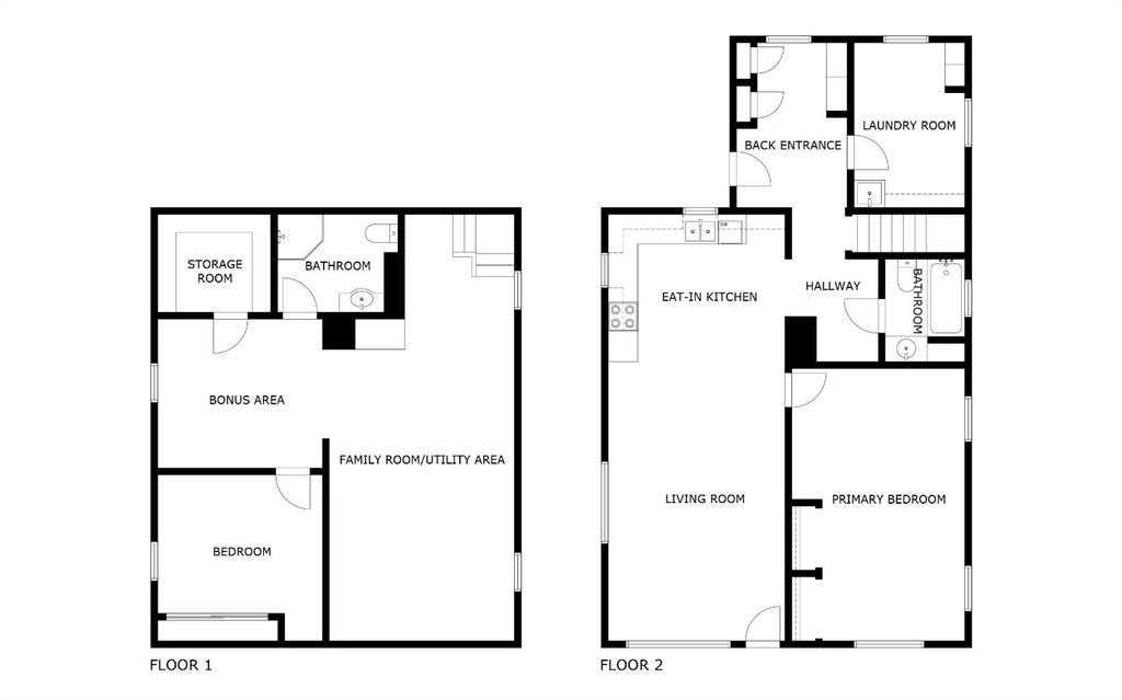
This 2 bedroom 2 bathroom home with a partially finished basement is situated on a large corner lot! The home is well set up with a mud room complete with built in storage, main level laundry room (with sink), large master bedroom and a spacious and functional eat in kitchen which is open to the living room. The exterior of the home features a covered deck, garden area and freshly planted apple and pear trees. The U shape driveway allows ample room for parking and easy access to to the large shop on the pro...

Read More

Essential Information

  • MLS® #
    A2279797
  • Full Bathrooms
    2
  • Year Built
    1947
  • Property Type
    Detached
  • Property Style
    Bungalow
  • MLS® #
    A2279797
  • Full Bathrooms
    2
  • Year Built
    1947
  • Property Type
    Detached
  • Property Style
    Bungalow
  • MLS® #
    A2279797
  • Full Bathrooms
    2
  • Year Built
    1947
  • Property Type
    Detached
  • Property Style
    Bungalow

Community Information

  • Postal Code
    T0H 1S0
  • Postal Code
    T0H 1S0
  • Postal Code
    T0H 1S0

Services & Amenities

  • Parking
    Drive Through
    Triple Garage Detached
  • Parking
    Drive Through, Triple Garage Detached
  • Parking
    Drive Through
    Triple Garage Detached

Interior

  • Floor Finish
    Laminate
    Linoleum
  • Heating
    Forced Air
    Natural Gas
  • Interior Feature
    See Remarks
  • Floor Finish
    Laminate, Linoleum
  • Heating
    Forced Air, Natural Gas
  • Interior Feature
    See Remarks
  • Floor Finish
    Laminate
    Linoleum
  • Heating
    Forced Air
    Natural Gas
  • Interior Feature
    See Remarks

Exterior

  • Lot/Exterior Features
    Garden
  • Roof
    Asphalt Shingle
    Metal
  • Construction
    Vinyl Siding
  • Lot/Exterior Features
    Garden
  • Roof
    Asphalt Shingle, Metal
  • Construction
    Vinyl Siding
  • Lot/Exterior Features
    Garden
  • Roof
    Asphalt Shingle
    Metal
  • Construction
    Vinyl Siding

Additional Details

  • Zoning
    Residential
  • Zoning
    Residential
  • Zoning
    Residential

$139,000

5031 48 Avenue

Schedule Tour
Contact Agent

$633/month
Est. Monthly Payment
$
$
%
Learn More